top of page

Nair's House

Nagpur, Maharashtra

Plot area - 260sqm

Built up area - 224sqm

Floors - Ground floor and First floor

UM_Ar_TEST_Duplex-Ground Floor_page-0001.jpg
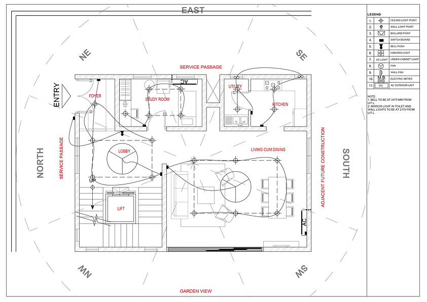
Electrical Layout Plan - Ground Floor
UM_Ar_TEST_Duplex-First Floor_page-0001.jpg
Electrical Layout Plan - First Floor
Electrical Layout Plan - Ground Floor
bottom of page