top of page

Dubai Office

Meeting Office, Dubai

Office area - 160sqm

Floors - Ground Floor

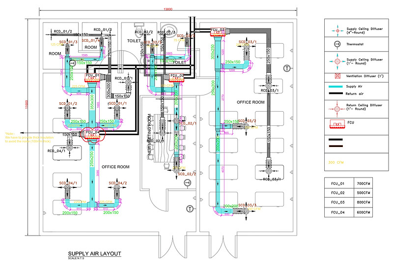
Supply air
Supply Air Layout Plan
Return air
Return Air Layout Plan
Electrical Layout Plan - Ground Floor
bottom of page